家里想要美式风格,该怎么装才好?
家里想要美式风格,该怎么装才好?
-
面积:90㎡
户型:两室两厅
风格:美式混搭

▲ 客厅和餐厅在同一个空间,一排落地窗,采光棒极了。

▲电视背景用了花鸟纹壁纸,蓝色布艺沙发很亮眼,同时充当和餐厅的隔断。

▲ 进门右手边靠墙做了一排鞋柜,旁边设置一块黑板墙,供将来孩子涂鸦。

▲ 地面全部用仿古砖菱形铺贴。

▲ 餐厅区背景墙就用一组装饰画点缀,四人小餐桌有点田园乡村味。

▲ 厨房比较小,冰箱放在外面过道上。

▲ U字形橱柜,白色模压橱柜配上有点泛黄的石英石。

▲ 干湿分离卫生间。

▲ 主卧用了两种不同的壁纸铺贴,配以蓝色帘子白色纱。

▲ 美式床和清新床品很搭。

▲ 次卧打通了设备阳台做成了写字台。

▲ 收纳空间也不能少,嵌入式衣柜很便利。

▲ 还有一个小房间做成书房。

▲ 书房也做了一排衣柜,以后可以改成儿童房。

▲ 生活阳台,洗衣机放置在这里,节省空间。

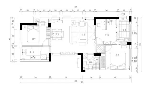
▲ 平面布置图
如果觉得帮助到您,就关注头条作者【众易居装修网】(微信公众号:zhongyiju360),让我们一起分享装修经验哈~
2017-12-27 14:47:50 -
谢邀,美式风格强调简练、清楚的线条和高雅、得当有度的装饰。 家居自在随意、简练怀旧、有用舒适;暗棕、土黄为主的天然颜色;欧洲皇室家具平民化、古典家具简单化;家具广大、有用舒适;偏重壁炉与手艺装饰,寻求粗犷大气、天然随意;美式家具特色十分明显的特色:大气、雍容、华贵、绮丽。 如果你自己对美式风格有所了解,能够亲自动手规划自己的家,这样更有意义。不过这对规划功底要求的比较高,当然也能够请专业的,这样能保证作用,还能节省成本,省时省劲。美式风格网上著作都许多的,能够去一些室内规划职业网站了解了解,挑选合适自己,在挑选上,合适自己的才是最好的。




2017-12-30 17:36:53 -
传统的美式风格在色彩上运用是淡雅、柔和、协调,以原木色为基础,白色、红色、褐色等整体色彩比较普遍。自然、怀旧、有着质朴气息的色彩是美式风格的特征。我家房子的面积不够大,但是我想装成美式风格,大连时尚美居装饰公司建议我可以做成简美,达到完美的协调效果。
2017-12-28 10:30:12