UG三维图怎么转二维图?

新农商网 全部 1032

UG三维图怎么转二维图?

回复

共1条回复 我来回复
  • 历历再目
    历历再目
    这个人很懒,什么都没有留下~
    评论

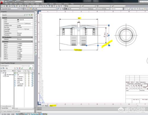
    1、点击文件菜单 弹出CAD格式转换窗口。

    2、2D转换类型中,又分model和layout两种

    3、选择2D转换类型中的layout,转换完毕后打开

    4、UG的视图图框完全转换成CAD视图图框,对视图进行标注

    5、选择CGM转换类型,转换完毕后打开

    2019-07-01 10:57:49 0条评论